Designers renewed Kitchen

On this project I am my own designer.  Designing for clients is much easier than designing for
myself. Designers know all the upcoming products and trends so to choose means that we could
be settling.  It took me sometime to think about my kitchens needs.  I have a pool at one end of
my house, a 4 season porch at the other,  I like to bake and entertain.

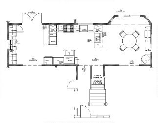
With that in mind I designed my kitchen as pods or areas.  The north area is for baking and
entertaining use. It is complete with it's own sink and small refrigerator. The middle section of the
kitchen is the main food prep area with ovens, stove, refrigerator and sink.  The south area is the
dinette area complete with a serving buffet and it's own refrigerator to serve the pool area.

Finally Happy To Be In My Own Kitchen.
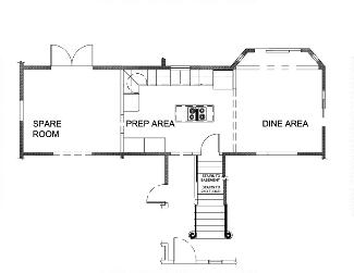
  Before Kitchen
Only one person at a time in the prep
area as sink, stove and refrigerator
were all in one area
    After Kitchen
Designed as pod areas. Area to bake
and entertain, food prep area and area
to service dining and pool
Cart of many uses...bar, appliance, grocery.
Pool free standing buffet
Office central...supplies and cookbooks